オトナの会社設立

オトナの会社設立

業界動向
設立支援
オフィス支援
助成&補助
イベント
副業
その他
編集長お勧め
記事検索
法人から個人まであらゆるニーズに【挨拶状ドットコムProfessional】
アクセスランキング トップ10










プレスリリース
トップ » プレスリリース » Duo Partner Design 合同会社

群馬渋川市で「平屋のように暮らせる家」完成見学会を開催
2026年4月3日 Duo Partner Design 合同会社
Yahoo!ブックマーク  Flog Buzzurl Choix livedoorClip Googleブックマーク はてなブックマーク iza  Twitter  GoogleBuzz
プレスリリース提供元:ValuePress!

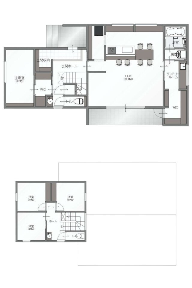
株式会社瀧澤興業(いちいホーム/群馬県高崎市)は、2026年4月4日〜4月19日、群馬県渋川市中郷にて完成見学会「平屋のように暮らせる家」を開催します。1階に主寝室を配置し将来は1階中心で暮らせる“半平屋プラン”や、22帖超のLDKと大開口による開放的な空間、庭・テラスとつながる暮らしを体感可能。共働き世帯に配慮した家事動線や素材を活かした外観デザインも見どころです。移住・定住ニーズが高まる群馬での新しい暮らし方を具体的に提案する機会となっており、報道関係者の現地取材・撮影・インタビューにも対応しています。

将来は1階だけで暮らせる“半平屋プラン”と、外の景色につながる開放的な住まいを期間限定公開。取材対応も可能。

株式会社瀧澤興業(注文住宅ブランド「いちいホーム」/群馬県高崎市)は、2026年4月4日(土)から4月19日(日)まで、群馬県渋川市中郷にて、完成見学会「平屋のように暮らせる家」を開催いたします。
本見学会では、1階に主寝室を配置し、将来は1階中心の暮らしへ移行しやすい“半平屋プラン”の住まいを、期間限定で公開します。会場となる渋川市は、自然環境と暮らしやすさの両立を感じやすい地域であり、群馬県全体でも移住・定住への関心が高まるなか、これからの住まい方を考える方に向けた見学機会となります。
本見学会は、単なる住宅の内覧にとどまらず、
「将来を見据えた住まい設計」
「広い敷地を活かした開放感のある暮らし」
「子育て世帯・共働き世帯の家事動線」
といった、今の住宅ニーズを体感できる内容です。
報道関係者の皆さまによる現地取材・撮影・設計者インタビューにも対応いたします。

開催背景

群馬県は近年、移住先として高い注目を集めています。2025年移住希望地ランキングでは、群馬県が「窓口相談」部門で2年連続1位、「セミナー参加者」部門で3年連続1位となりました。群馬県知事の会見要旨では、県内移住者数がこの10年で大きく増加し、平成26年度の124人から令和6年度には1,560人へ伸びたことも示されています。

また、渋川市も移住・定住に関する情報発信や支援制度案内を行っており、地域での新しい暮らしに関心を持つ層に向けた受け皿づくりが進められています。今回の完成見学会は、そうした流れの中で、「群馬でどんな暮らしができるのか」を具体的な住まいの形として体感できる場として企画しました。

見どころ

1.将来は1階だけで暮らせる「半平屋プラン」
主寝室を1階に配置し、若い時期は2階も活用しながら、将来は1階中心の生活へ移行しやすい間取りです。
子育て期から将来の暮らしまで見据えた設計で、長く快適に住み続けられる住まいのあり方を提案しています。

2.22帖超のLDKと大きな窓が生む開放感
約22帖以上のLDKに大きな窓を設け、外の景色と室内がゆるやかにつながる空間を実現。周囲に畑や空が広がる環境を活かし、室内にいながら自然の広がりを感じられる住まいです。

3.庭・テラスとつながる暮らし
広い敷地を活かし、庭とテラスが日常の延長になる設計を採用。
バーベキューや家庭菜園、子どもの外遊びなど、家の中だけで完結しない暮らしの豊かさを体感できます。

4.共働き世帯にも嬉しい家事ラク動線
「玄関→パントリー→キッチン」の動線や、「洗う→干す→しまう」を一か所で完結しやすいランドリールーム・ウォークインクローゼット・テラスのつながりなど、毎日の家事負担を減らす工夫を取り入れています。

5.3つの素材を組み合わせた外観デザイン
ガルバリウム鋼板・塗り壁・木材を組み合わせ、重厚感と温かみ、デザイン性をバランスよく表現。
素材感の違いを活かしながら、すっきりと美しい外観にまとめています。

取材ポイント

報道関係者の皆さまには、以下のような切り口で取材いただけます。
・群馬への移住・定住ニーズの高まりと、地域での住まい選び
・「平屋志向」と「2階建ての機能性」を両立する半平屋プラン
・子育て世帯・共働き世帯に求められる家事動線と収納計画
・自然環境を活かした、郊外ならではの開放的な住宅設計
・将来の暮らし方まで見据えた“長く住み続けられる家”の考え方
・地域工務店・住宅ブランドが提案する、群馬らしい暮らしのかたち
設計者による案内・間取り意図の説明・現地撮影対応も可能です。


[資料: https://files.value-press.com/czMjYXJ0aWNsZSM4NzA0MiMzNzIxOTkjODcwNDJfeURlc1NIQmZXZS5qcGc.jpg ]
開催概要

イベント名: 「平屋のように暮らせる家」完成見学会
開催期間: 2026年4月4日(土)〜2026年4月19日(日)
時間: 10:00〜17:00(完全予約制)
会場: 群馬県渋川市中郷(※詳細住所はご予約後にご案内)
内容: 完成したばかりの注文住宅の見学、設計意図の解説、住まいづくり相談
対象: 家づくりを検討中の方、平屋・半平屋に興味のある方、群馬での暮らしや移住を考えている方

いちいホームについて

いちいホームは、株式会社瀧澤興業が展開する注文住宅ブランドです。
群馬県高崎市を拠点に、前橋市・藤岡市・富岡市・安中市・渋川市などを中心に、家族ごとの“ちょうどよさ”を大切にした家づくりを行っています。
設計と施工の両面から、住まいを「建てること」だけでなく、「その後の暮らしが育っていくこと」まで見据えた住まいづくりを目指しています。

報道関係者様へ

本見学会では、報道関係者様の現地取材を受け付けております。写真撮影、設計者・担当者へのインタビュー、住まいの見どころ解説などにも対応可能です。
「群馬での移住・子育て・住まい」をテーマとした取材先としても、ぜひご活用ください。

お問い合わせ先

いちいホーム(株式会社瀧澤興業)
〒370-0884 群馬県高崎市八幡町788-8
TEL:027-381-8939
公式サイト: https://kk-takizawa.jp/


提供元:valuepressプレスリリース詳細へ

会社設立 新着30件